Gavi – Gávea + vida
Rua Marquês de São Vicente - Gávea - Rio de Janeiro
Gávea + Vida: O Privilégio de Morar no Epicentro do Charme Carioca
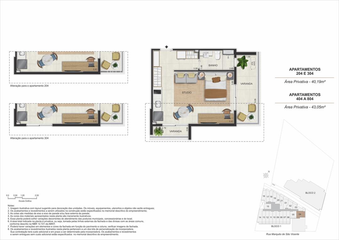
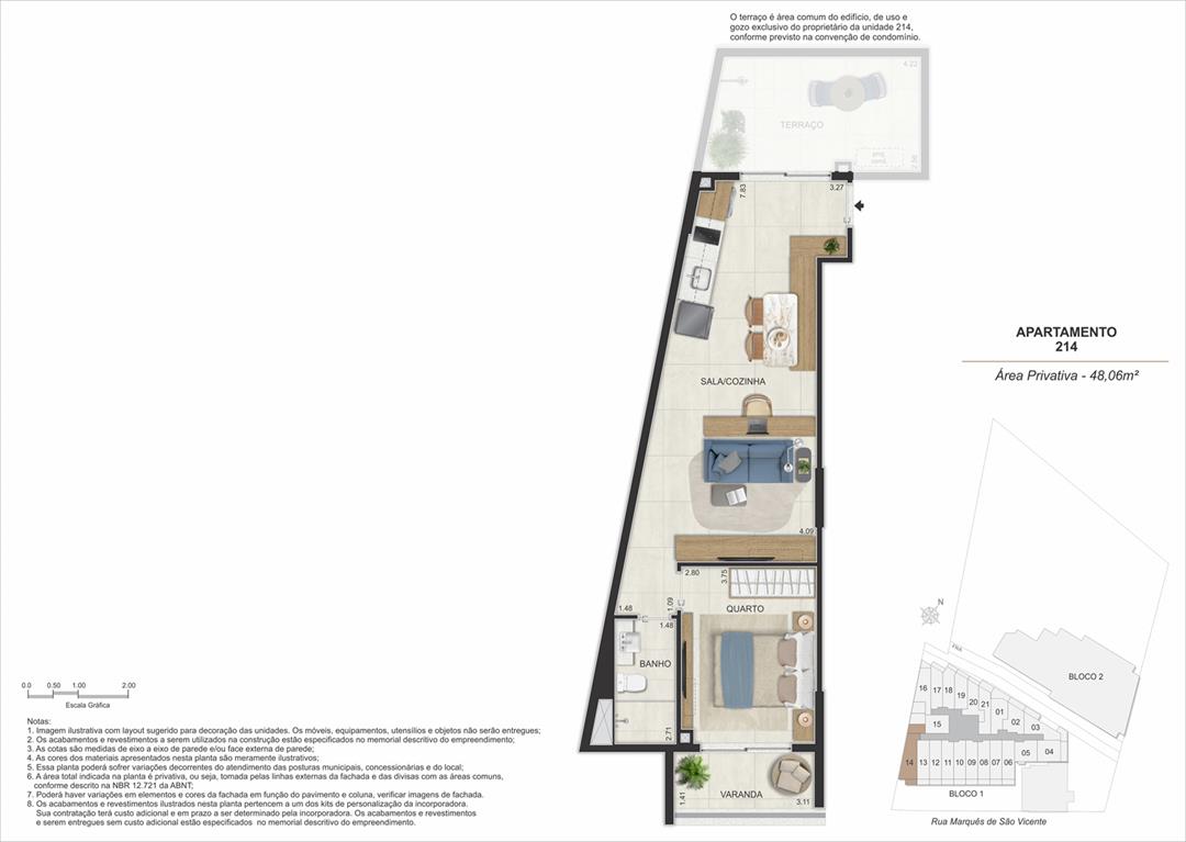
O Gavi – Gávea + Vida chega como um convite irrecusável para quem deseja escrever um novo capítulo em um dos endereços mais nobres e desejados do Rio de Janeiro. Este lançamento exclusivo captura a essência vibrante da Gávea, oferecendo uma oportunidade rara de investimento e moradia onde a sofisticação encontra a descontração típica do bairro. Com opções que vão desde studios modernos a apartamentos de 1 a 3 quartos, e metragens versáteis entre 30m² e 98m², cada espaço foi planejado para refletir a identidade de quem busca um estilo de vida dinâmico, sem abrir mão do acolhimento.
A conveniência de plantas inteligentes, com até 2 banheiros e vagas de garagem, torna o Gavi o equilíbrio perfeito entre o conforto contemporâneo e a praticidade urbana. Viver aqui é estar cercado pela atmosfera cultural e gastronômica da Zona Sul, em um empreendimento que redefine o bem-estar e garante a valorização de um patrimônio sólido. Prepare-se para experimentar o luxo de ter o Rio de Janeiro aos seus pés em um projeto desenhado para quem exige o extraordinário todos os dias.






























